https://tnv.ru
15 января 2021, 10:41
298
0
Его планируют возвести между массивами Самосырово и Вознесенское.

В столице Татарстана стартовали общественные обсуждения по проекту планировки и межевания территории под строительство нового жилого массива «Тихая Гавань». Они продлятся до 18 февраля.
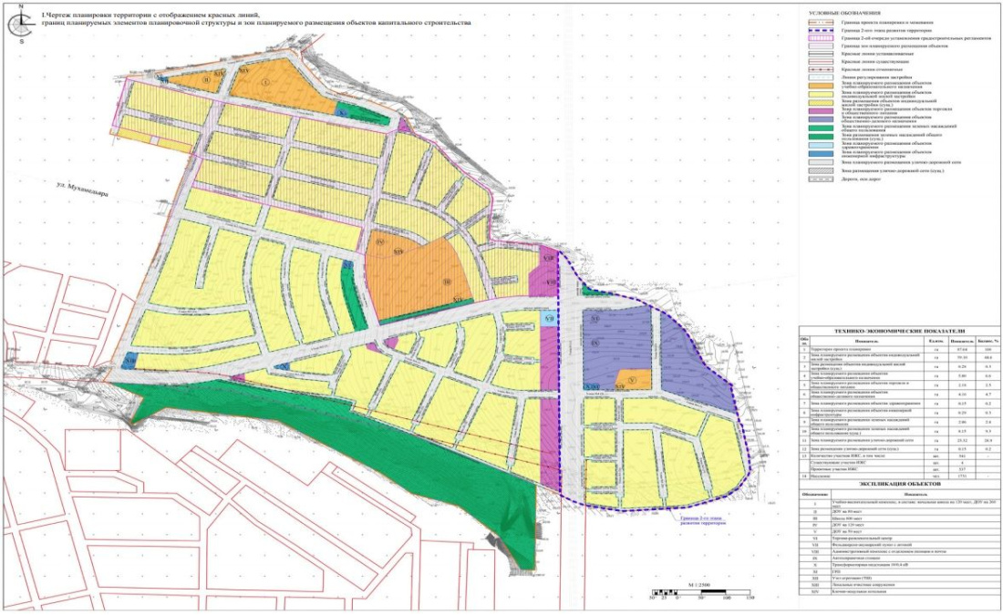
Согласно данным, опубликованным на официальном портале мэрии, жилой массив планируют возвести между массивами Самосырово и Вознесенское, он разместится на площади 87,64 гектаров.
541 участок нового массива планируют отдать под индивидуальную жилую застройку. Кроме того, здесь планируют построить два детских сада, фельдшерско-акушерский пункт, аптеку, два торгово-развлекательных центра, а также административные комплексы и АЗС.
фото: kzn.ru
Согласно данным, опубликованным на официальном портале мэрии, жилой массив планируют возвести между массивами Самосырово и Вознесенское, он разместится на площади 87,64 гектаров.
541 участок нового массива планируют отдать под индивидуальную жилую застройку. Кроме того, здесь планируют построить два детских сада, фельдшерско-акушерский пункт, аптеку, два торгово-развлекательных центра, а также административные комплексы и АЗС.
фото: kzn.ru
Поделиться
Комментарии 0