https://tnv.ru
24 ноября 2022, 13:01
722
0

Новый жилой микрорайон М-14 начнут возводить в ближайшее время в Приволжском районе Казани. Соответствующий проект утвержден исполкомом города.
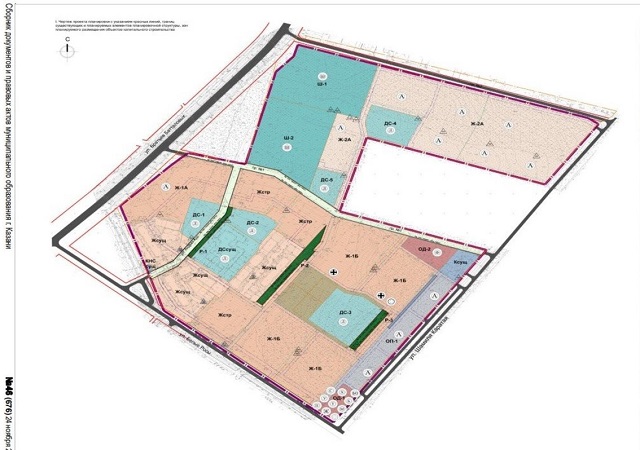
Площадь застройки, на которой планируют создать жилье для 13 700 человек, составит 45,12 гектаров. Будущий микрорайон будет граничить с улицами Братьев Батталовых, Шамиля Каратая, Белые Росы и жилым массивом Медгородок-3.
Кроме жилой высотной застройки здесь планируют построить две школы на 1 224 места и пять детских садов общей вместительностью 680 мест. Также в проекте упоминаются многофункциональный центр, физкультурно-оздоровительный комплекс, несколько аптек и магазинов и другие объекты социальной и административной инфраструктуры.
Площадь застройки, на которой планируют создать жилье для 13 700 человек, составит 45,12 гектаров. Будущий микрорайон будет граничить с улицами Братьев Батталовых, Шамиля Каратая, Белые Росы и жилым массивом Медгородок-3.
Кроме жилой высотной застройки здесь планируют построить две школы на 1 224 места и пять детских садов общей вместительностью 680 мест. Также в проекте упоминаются многофункциональный центр, физкультурно-оздоровительный комплекс, несколько аптек и магазинов и другие объекты социальной и административной инфраструктуры.
Поделиться
Комментарии 0